Le Quartier
Qualité & Construction
Choix des Lots
Bâtiment A
Bâtiment B
Bâtiment C
Lots T2
Lots T3
Lots T4-T5
Maisons
Contact
Appelez-nous!
06 64 04 03 72
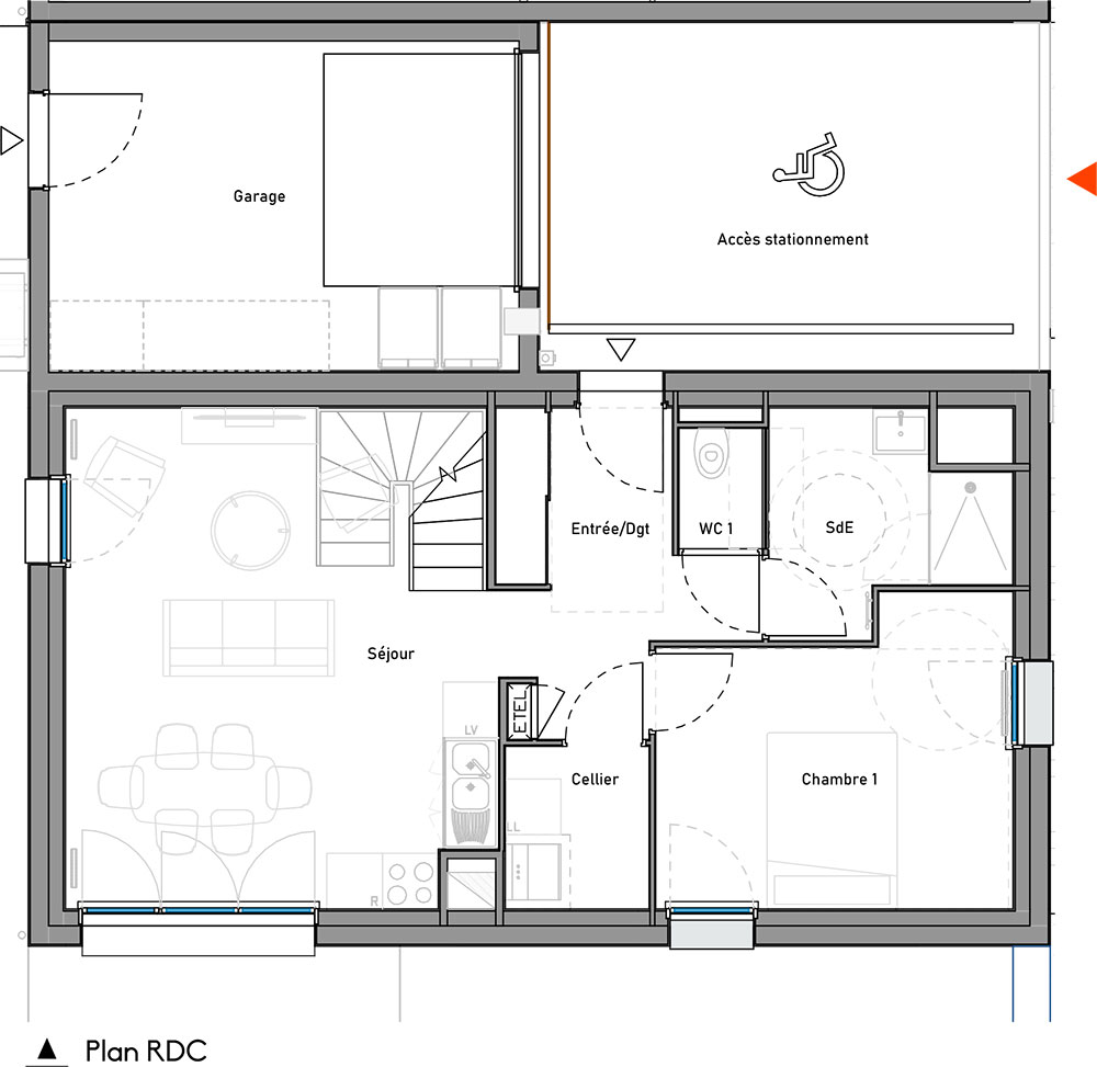
Bâtiment C - Lot C002
Accueil
Choix des Lots
Bâtiment C
Bâtiment C - Lot C002
+
+
+
TIERCÉ
ZAC Le Bourg Joly - Îlot C
Résidence Gogane
Bâtiment C
T5
C002
+
Ce lot vous intéresse ?
Envoyer
Le Quartier
Qualité & Construction
Choix des Lots
Bâtiment A
Bâtiment B
Bâtiment C
Lots T2
Lots T3
Lots T4-T5
Maisons
Contact