Appelez-nous!

06 64 04 03 72

Image
Image
Image
Image

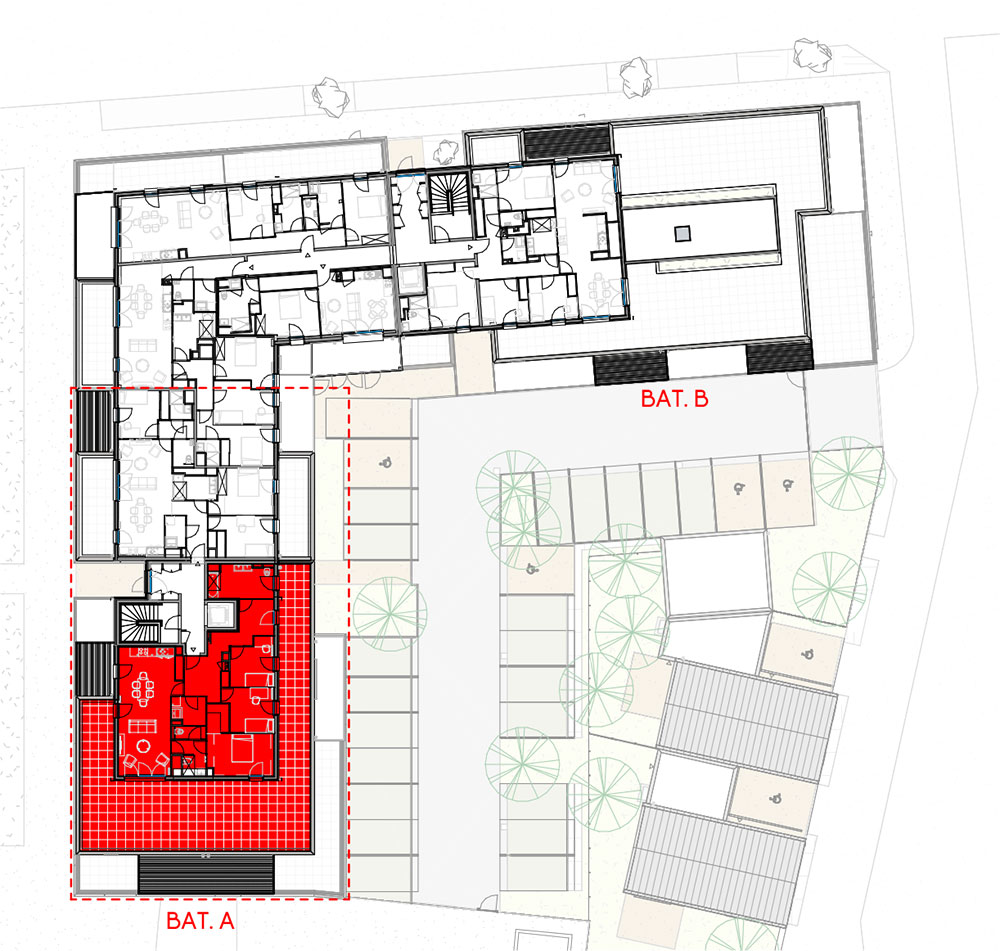
Bâtiment A - Lot A302

Image

 

TIERCÉ
ZAC Le Bourg Joly - Îlot C
Résidence Gogane


Bâtiment A
Niveau 3

T4
A302

Ce lot vous intéresse ?

Image