Le Quartier
Qualité & Construction
Choix des Lots
Bâtiment A
Bâtiment B
Bâtiment C
Lots T2
Lots T3
Lots T4-T5
Maisons
Contact
Appelez-nous!
06 64 04 03 72
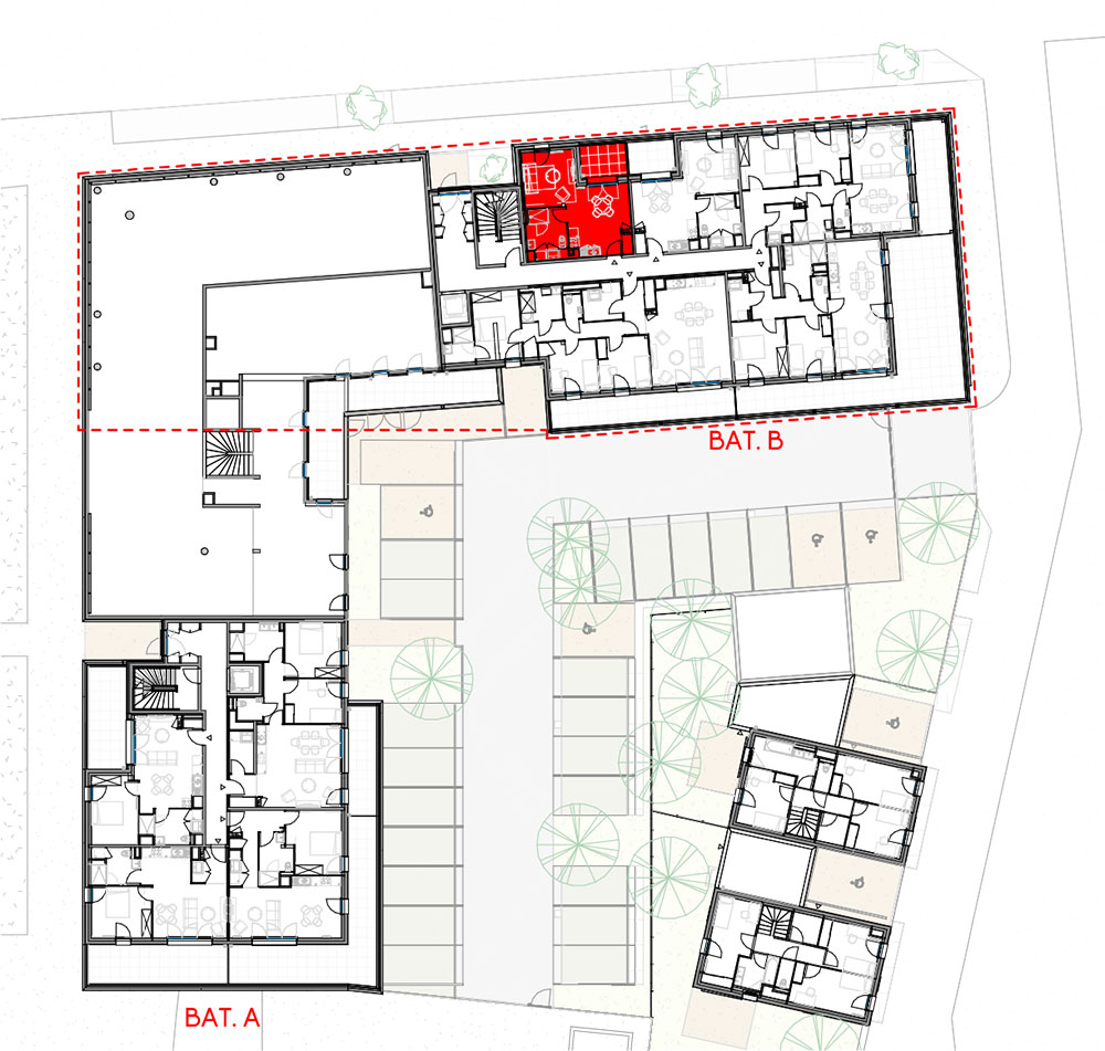
Bâtiment B - Lot B 101
Accueil
Choix des Lots
Bâtiment B
Bâtiment B - Lot B 101
+
+
TIERCÉ
ZAC Le Bourg Joly - Îlot C
Résidence Gogane
Bâtiment B
Niveau 1
T1
B101
Prix :
139 500,00 €
Ce lot vous intéresse ?
Envoyer
Le Quartier
Qualité & Construction
Choix des Lots
Bâtiment A
Bâtiment B
Bâtiment C
Lots T2
Lots T3
Lots T4-T5
Maisons
Contact